買いたい方|不動産を探すならグローバルアセット

お電話でのお問い合わせ
TEL:0120-848-970
埼玉県さいたま市大宮区大成町1丁目435-5 柳川第3ビル1F
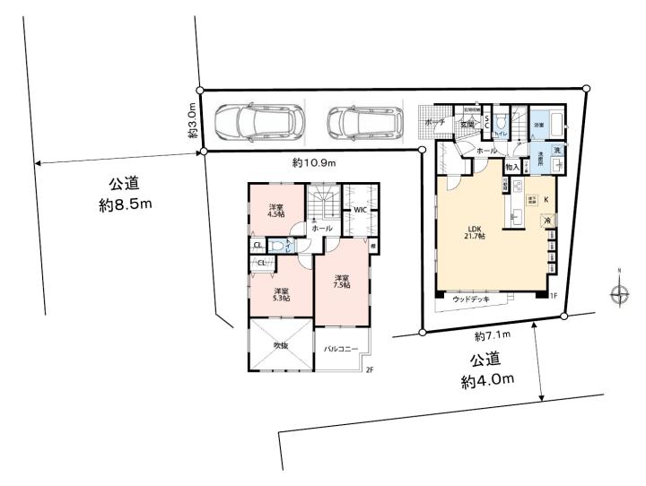
| 物件名 | 【御成約】さいたま市見沼区大字蓮沼リフォーム住宅 |
|---|
| 交通機関 | 東武アーバンパークライン『七里』駅 徒歩 11分 |
|---|
| 所在地 | さいたま市見沼区大字蓮沼 |
|---|
| 土地権利 | 所有権 |
|---|
| 建物構造 | 木造 |
|---|
| 階 / 階数 | 2階建 |
|---|
| 築年月 | 2017年01月 |
|---|
| 都市計画 | 市街化区域 |
|---|
| 用途地域 | 第二種中高層住居専用地域 |
|---|
| 建ぺい率 | 60% |
|---|
| 容積率 | 200% |
|---|
| 接道 |
|
|---|
| 地目 | 宅地 |
|---|
| 現況 | 空 |
|---|
| 取引態様 | 専任 |
|---|
| 情報登録日 | 2022年07月10日 |
|---|
| 情報更新日 | 2022年07月10日 |
|---|
〒330-0852
埼玉県さいたま市大宮区大成町1丁目435-5
TEL 0120-848-970
TEL 048-661-6777
FAX 048-661-6778
宅建免許番号:埼玉県知事 (3) 第22782号